Технический и дизайнерский проекты кухни

Планирование дизайна кухонного гарнитура до начала ремонта — критически важный этап. Вот ключевые причины:
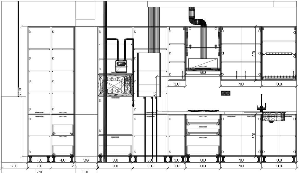
1. Оптимизация пространства
Технический проект позволяет:
* точно рассчитать габариты мебели с учётом геометрии помещения (включая ниши, выступы, трубы);
* грамотно разместить «рабочий треугольник» (мойка–плита–холодильник) для удобства готовки;
* избежать «мёртвых зон» и неэффективно используемых участков.
2. Интеграция коммуникаций
На этапе ремонта необходимо:
* заложить розетки строго в местах установки техники (духового шкафа, варочной панели, вытяжки);
* предусмотреть выводы воды и канализации под мойку;
* спланировать вентиляционные каналы.
Без проекта высок риск ошибок: розетки окажутся за шкафами, над мойкой и варочной поверхностью, а трубы — на пути открывания дверей.
3. Согласование отделки и мебели
Дизайн-проект определяет:
* высоту фартука (чтобы стык со столешницей был идеальным);
* расположение напольного покрытия (например, под холодильником);
* цвет и фактуру материалов, гармонирующих с гарнитуром.
Без этого возможны зазоры, несовпадение оттенков или необходимость переделки.
4. Экономия бюджета
Предварительное планирование:
* исключает переделки из‑за ошибок в размерах или расположении элементов;
* позволяет выбрать оптимальные материалы и фурнитуру в рамках бюджета;
* снижает риск повреждения отделки при монтаже мебели.
5. Учёт технических нюансов
Проект включает:
* расчёт нагрузки на стены (для навесных шкафов);
* места для вентиляционных решёток;
* зазор под плинтусы и компенсационные швы;
* особенности установки встроенной техники.
Этапы работы: (по замеру Луначарского, 119)
1. Осмотр помещения и производство замеров:
2. Составление схемы помещения в программе:
3. Составление Технического проекта гарнитура:

4. Работа с Заказчиком по согласованию размещения основных модулей и их размеров, габаритов встраиваемой техники:

5. Предварительная работа с дизайном:


6. Утверждение готового дизайн-проекта

7. Возможна визуализация в нейросети, если хочется посмотреть на будущую кухню "вживую"


+ материалы рекламы
|